+ DE PHOTOS
Bel Epok – A101
Audun-le-Tiche | France
220 147€
-
Type de bien
-
Surface
-
Chambre
-
Extérieur
Nouvelle construction “Résidence Bel Epok” à Audun-le-Tiche (57390) – Livraison courant 2024.
Située à la frontière luxembourgeoise à deux pas de Esch Belval, dans le secteur prisé d’Audun-le-Tiche, la nouvelle résidence Bel Epok est le premier projet de résidence haut de gamme dans ce secteur. Constitué d’une Maison de Maître à la façade classée et d’une résidence ultra moderne à l’arrière, ce projet vous séduira autant par la finition soignée de ses logements et de leurs équipements que par le charme de son architecture. La résidence propose vingt-et-un logements conçus avec soin pour vous offrir confort et qualité de vie.
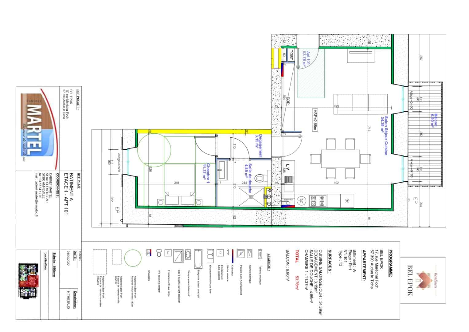
Votre logement : l’appartement A101 est un F2 se situant au 1er étage et d’une superficie de 53,76 m2. Le bien dispose d’une pièce à vivre de 26,25 m2 ainsi que d’un balcon de 6,9 m2.
Visite virtuelle de l’appartement : https://mon.plan3d.immo/3dhd/s/20220906124510678
Situation : hyper-centre, commerce, services, et transport en commun desservant Luxembourg (Esch, Esch Belval, Luxembourg Ville), une piste cyclable est en construction pour desservir Esch Belval.
Quelques spécificités techniques : chauffage au sol, portes semi-blindées (10 cm d’épaisseur et 7 points de fermeture), visiophone, porte d’entrée de la résidence en verre sécurit, grands carrelages en 45cm, 60cm de côté ou carrelage impression parquet au choix dans tout l’appartement, fenêtres double vitrage avec gaz argon (très bon isolant phonique et thermique), volets en aluminium motorisés et isolés (dans la résidence moderne, volets battant bois dans la résidence de charme), faïences comprises et à choisir dans la salle de douche, salle de douche entièrement équipée, meuble lavabo avec tiroirs à frein et miroir éclairé, sèche-serviettes, bac de douche à l’italienne et wc suspendus, choix des portes intérieures, peintures murs et plafonds finies, solutions de domotique intégrées avec gestion des volets (dans la résidence moderne), fenêtre toute hauteur dans la pièce de vie et brise soleil orientable motorisé, (dans la résidence moderne), ascenseur desservant tous les étages (dans la résidence moderne).
Des caves, parkings intérieurs et extérieurs viennent compléter ces biens.
Constructeur et promoteur : le groupe Martel Promotion, promoteur régional et familial ayant déjà réalisé une résidence à l’emplacement de l’ancien cinéma au centre d’Audun-le-Tiche.




